 |
| 設置について |
■車が入る大きさは車全長+200mm以上、車全幅+250mm以上(最低2150mm以上)
■平坦なコンクリート床で勾配は3/100以下
■設置に関しては、事前に当社仕様に基づいた基礎工事などが必要な場合があります。詳細は販売店におたずねください。 |
| 設置場所 |
| ■平面なコンクリート床(アスファルト、砂利等の上に設置は不可) |
| 安全対策 |
| ■左右方向停止位置付近での電気式原則センサー(オプション) |
|
|
| タイプ |
全車種対応型 |
| 型式名 |
アスノくん-E |
| 収容可能車仕様 |
| 車両総重量(kg) |
2,500以下 |
| ホイルベース(mm) |
2,900以下 |
|
トレッド(mm)
|
1,700〜1,100 |
| 最低地上高(mm) |
90 |
| 装置寸法 |
| 全幅(mm) |
1,850 |
| 全長(mm) |
3,750 |
| 地上高(mm) |
170 |
| 駆動方式 |
家庭用100V |
| 塗装色 |
溶融亜鉛メッキ |
|
| ※商品改良のため、仕様、外観など予告なしに変更することがありますのでご了承下さい。 |
 |
| 設置について |
■車庫の大きさは車全長+500mm以上、車全幅+350mm以上(最低2150mm以上)
■平坦なコンクリート床で勾配は3/100以下
■設置に関しては、事前に当社仕様に基づいた基礎工事などが必要な場合があります。詳細は販売店におたずねください。 |
|
 |
| タイプ |
全車種対応型 |
| 型式名 |
アスノくん- E |
| 収容可能車仕様 |
| 車両総重量(kg) |
2,500以下 |
| ホイルベース(mm) |
2,900〜2,300 |
|
トレッド(mm)
|
1,650以下 |
| 最低地上高(mm) |
120以上 |
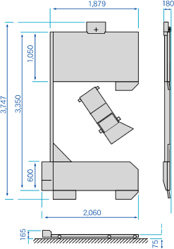
| 装置寸法 |
| 全幅(mm) |
2,050 |
| 全長(mm) |
3,747 |
| 全高(mm) |
180 |
| 入出庫時間(秒) |
15 |
| 仕様電源(V) |
100 |
| モーター仕様 |
0.2kwブレーキ付 |
| 塗装色 |
溶融亜鉛メッキ |
|
| ※商品改良のため、仕様、外観など予告なしに変更することがありますのでご了承下さい。 |
|